Einfamilienhaus
Lustenau 7

Informationen rund
um dieses Projekt

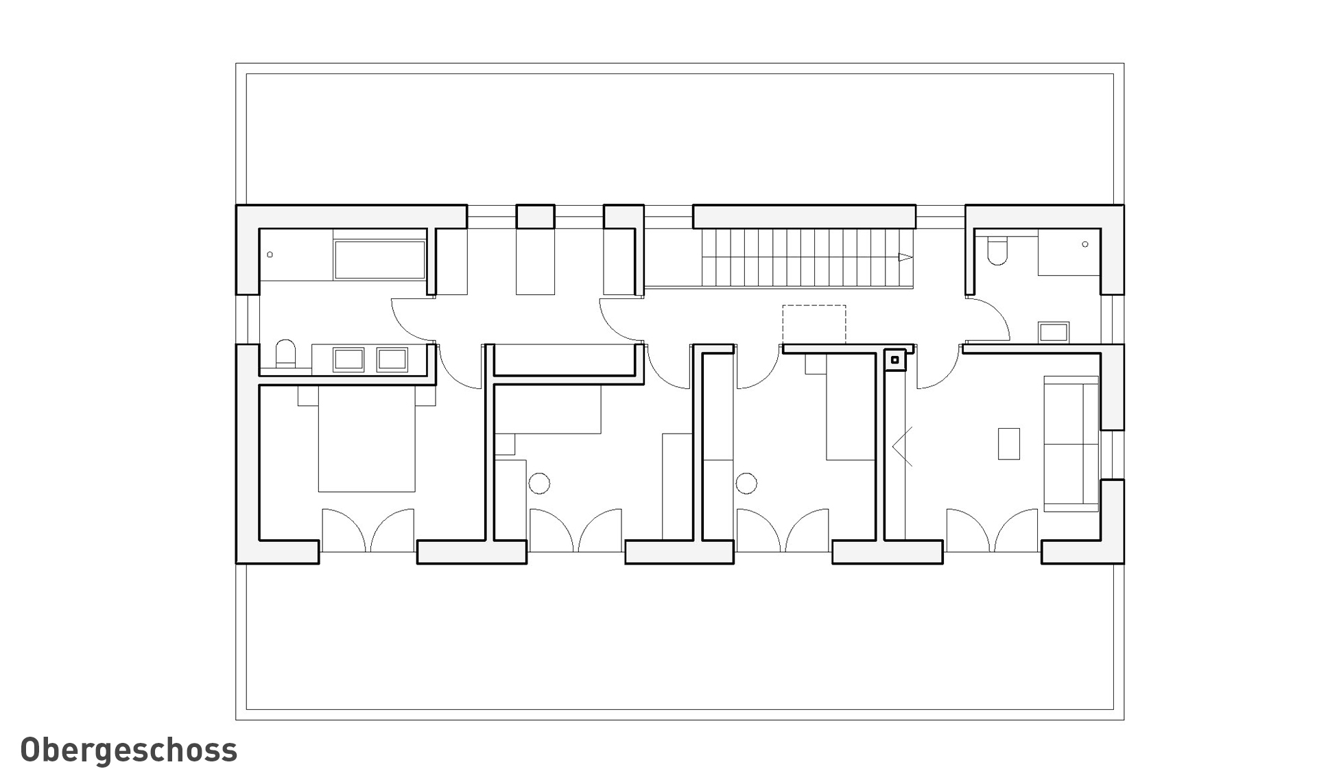
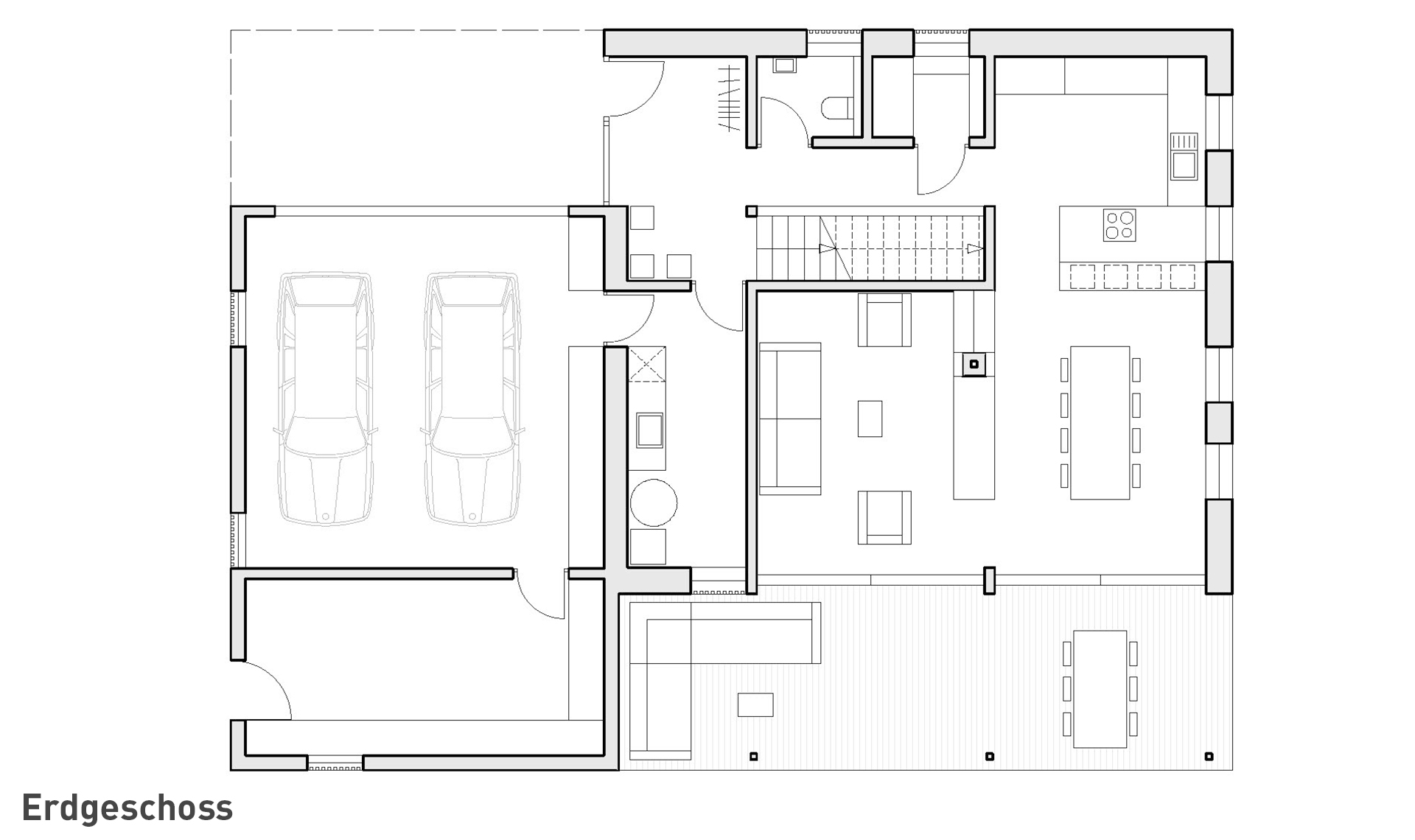
  • Bauweise: Holzständerkonstruktion
  • Wohnfläche: 162 m²
  • Fassade: Holzschirm in Fichte endbehandelt
  • Heiztechnik: Wärmepumpe
  • Bauzeit: 8 Monate
  • Planung: DI Martin Schneider
  • Foto: Studio 22, Marcel Hagen

zurück