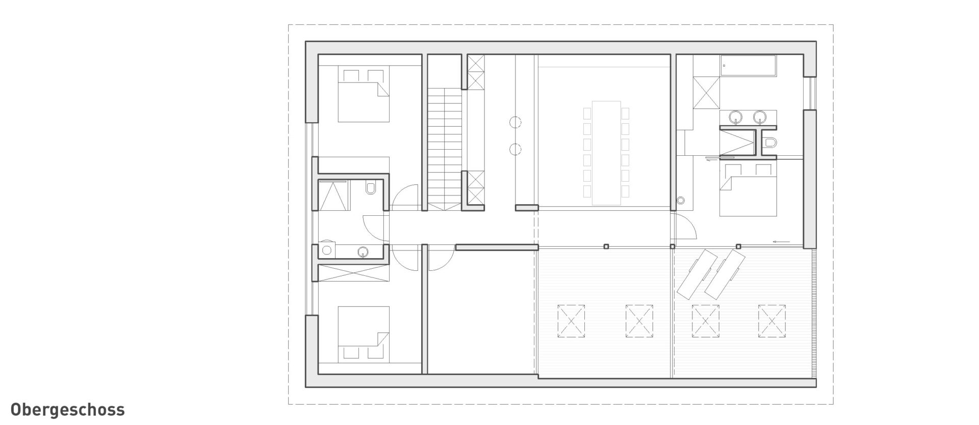
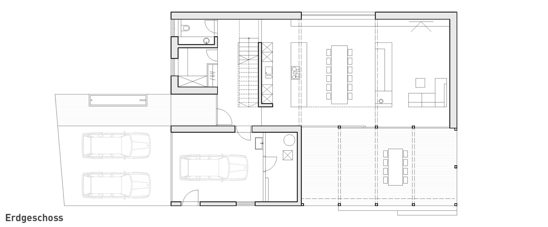
Einfamilienhaus
Salmsach 1

Informationen rund
um dieses Projekt

  • Bauweise: Holzständerkonstruktion
  • Wohnfläche: 200 m²
  • Fassade: Holzschirm in Fichte
  • Heiztechnik: Wärmepumpe
  • Bauzeit: 9 Monate
  • Planung: Architektur Jürgen Hagspiel
  • Foto: Studio 22, Marcel Hagen

zurück