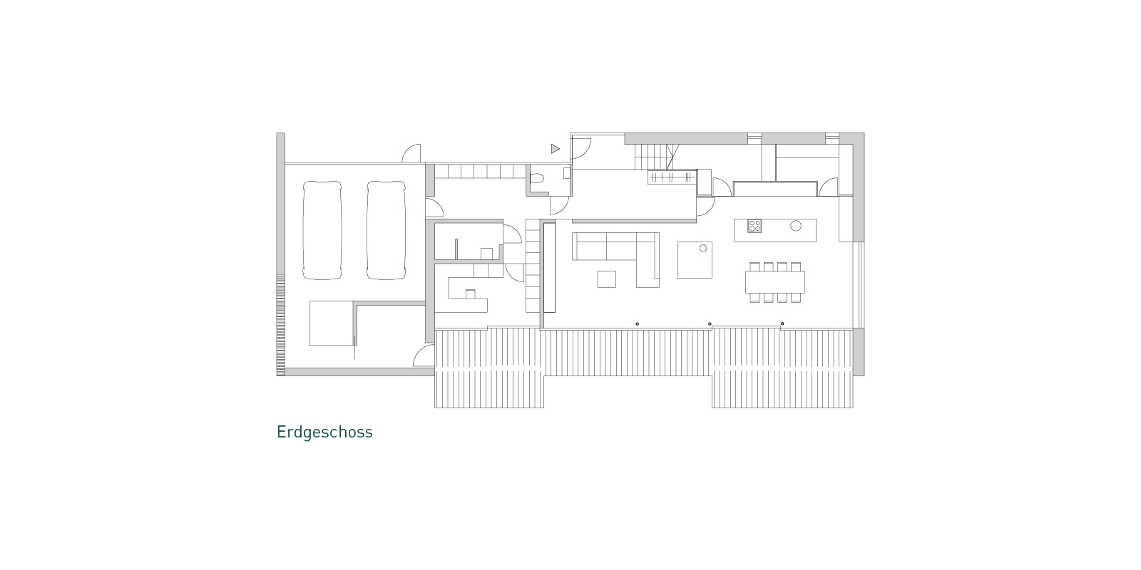
Einfamilienhaus
Sonthofen

Informationen rund
um dieses Projekt

  • Bauweise: Holzständerkonstruktion
  • Wohnfläche: 265 m²
  • Fassade: Weisstannenschirm
  • Heiztechnik: Wärmepumpe mit Komfortlüftung
  • Bauzeit: 7 Monate
  • Planung: Architektur Jürgen Hagspiel

zurück